Цветелина Джоголанова / Cvetelina Dzhogolanova

Интериорен дизайнер
Пловдив

Интериорен Бутик на Цветелина Джоголанова / Interior Boutique by Cvetelina Dzhogolanova

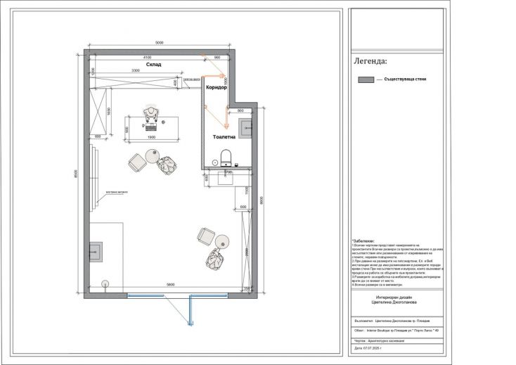
Представям на Вашето внимание личния си подпис, изразен чрез пространството, в което творя с екипа си — моят офис и шоурум. Моят офис и шоурум са замислени като жив израз на моята дизайнерска философия. За мен интериорният дизайн е осъзнат процес – диалог между пространство, човек и усещане за сигурност. Всеки проект започва от въпроса: как иска да се чувства човекът в това пространство? В работата си създавам интериори, които вдъхновяват, но и подкрепят ежедневието – с ясна функционалност, балансирана естетика и внимание към детайла. Шоурумът ми е реален пример за този подход: място, в което материалите, светлината и формите работят заедно, за да създадат спокойствие и доверие. Mясто, в което дизайнът не се показва, а се преживява. Централният елемент зад работното бюро е оформен с MDF облицовка с метализиран и матов ефект, допълнена от интегрирано лого и LED амбиентно осветление. Клиентите ми получават не просто визуална концепция, а цялостно изпълнение – от идея до реализация, с ясна структура, професионално водене и лично отношение. За мен дизайнът е отговорност: към пространството, към хората, които ще живеят в него, и към качеството, което остава във времето. Това пространство е моята визитка – отражение на начина, по който работя, мисля и реализирам интериорен дизайн. I present my personal signature, embodied in the space where I create alongside my team—my office and showroom. My office and showroom are conceived as a living expression of my design philosophy. I approach interior design as a conscious process—one that balances aesthetics, functionality, and emotional well-being. Each project begins with a fundamental question: how does the client want to feel in this space? Every space I create is shaped around the individual, responding to personal lifestyle, rhythm, and the need for harmony. This showroom represents my way of working: thoughtful material selection, precise detailing, and a refined dialogue between light, form, and texture. It is a place where design is not merely displayed, but experienced. I offer clients a complete and structured process—from concept to execution—guided by clarity, responsibility, and personal commitment. My goal is to create interiors that feel timeless, grounded, and quietly inspiring—spaces that support daily life and retain their value over time. This space is my signature—an authentic reflection of how I design, build, and collaborate.

  • 18.12.2025
  • 28

Цветелина Джоголанова / Cvetelina Dzhogolanova

Интериорен дизайнер
Пловдив