Fine Architects Ltd.

Архитект
София

Ефирен и стилен апартамент в кв. Лозенец, гр.София

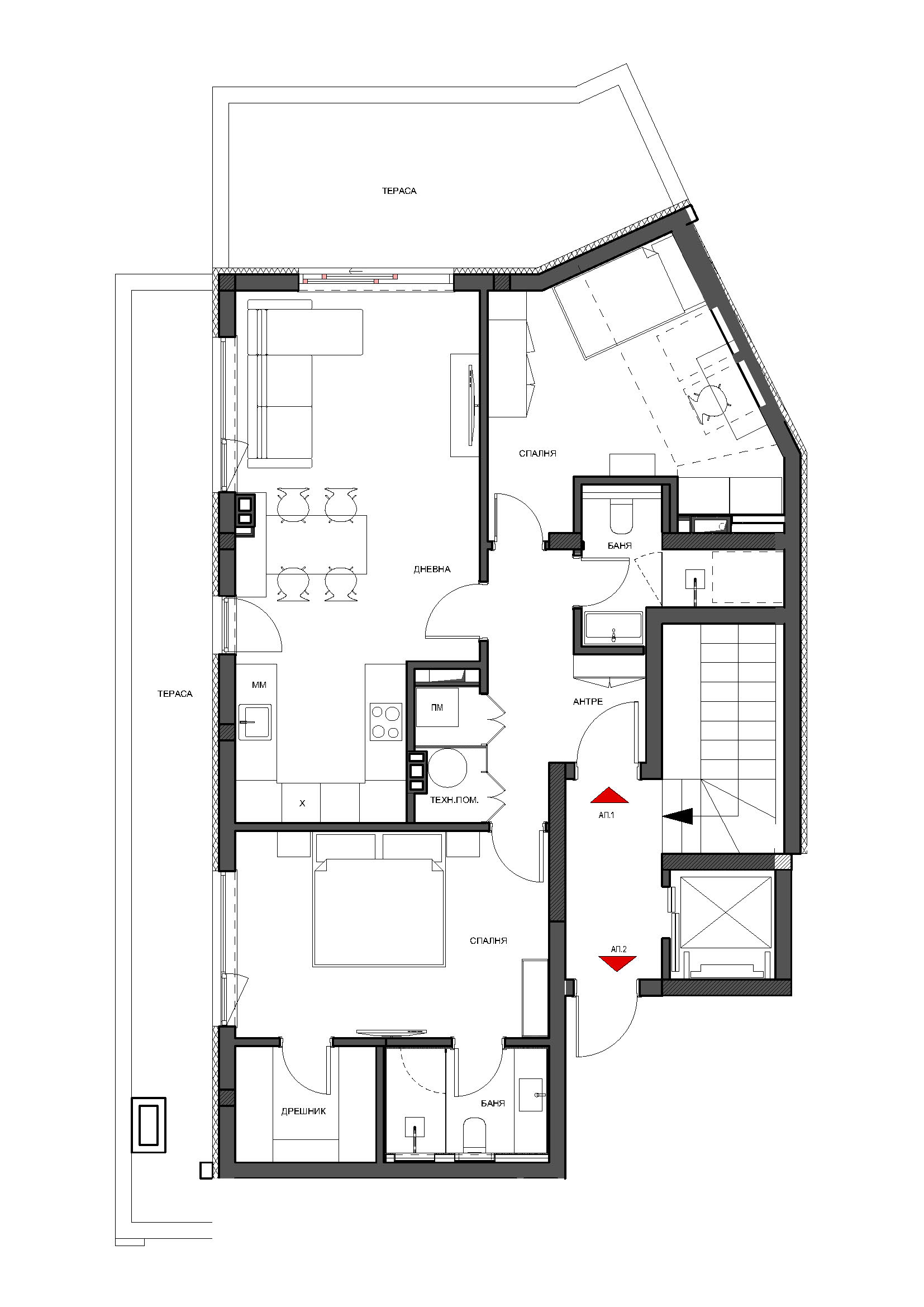
Този нежен и ефирен апратмент на последния етаж в модерна нова сграда в най-престижната част на кв. Лозенец до Южния парк, носи усещане за лекота и морски бриз. Първоначално Възложителят закупува един много голям покривен апартамент с 3 спални и не много ефективно разпределяне на голямата обща площ, но решава да го преустрои в 2 отделни дву-спални апартамента с по-малки площи, за да осигури във втория апартамент самостоятелност за вече порасналите си деца. Желанието на Възложителя е да не е прекалено модернистично и минималистично и да повече има цвят. Затова решението е леки, деликатни тонове, в леко вариращи в различните помещения нюанси на синьо и зелено, които придават допълнителен визуален обем на стаите. Планировъчното решение е високо-ефективно за вече неголямата жилищна площ на апартамента, но включва антре, дневна с кухня и трапезария, 2 спални, 2 бани, техническо и перално помещение, 2 големи тераси. Крайното усещане е за непреходна елегантност и модерна визия с деликатна класическа нотка, отговаряща на усещането на клиента за жилищен уют.

  • 28.11.2022
  • 423

Fine Architects Ltd.

Архитект
София