Fine Architects Ltd.

Архитект
София
Номиниран 2022

Динамичен лофт в София / Dynamic city loft in Sofia

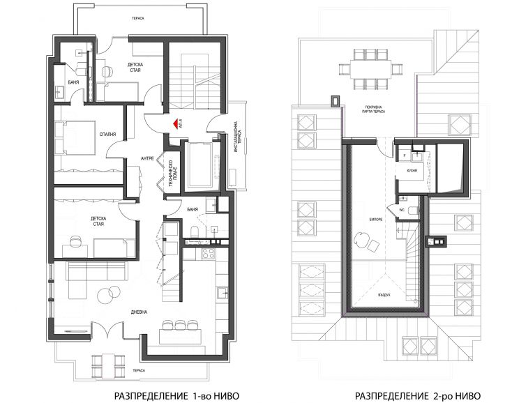
Животът под покрива винаги е добра идея! Там се диша по-леко! Този модерен лофт в нова сграда в София се характеризира с динамична визия и свобода на духа заради двойния обем над дневната зона. С непреходен стил, неподвластен на модните течения и уют, заради естествените материали. Апартаментът напълно се възползва от даденостите на сградата с двойния обем над дневната и обилната светлина от покривните прозорци, която облива целият интериор в светлина от сутрин до вечер. На обща площ от 184м2 се разполагат антре, дневна с кухня и тразпезария, 3 спални, 2 бани и перално на 1во ниво и емпоре, парти тераса с кухня и тоалетна на 2во ниво. Главният акцент е ламперията зад дивана, която прилива в ажурен парапет на емпорето. Подобно на клавиши на пиано, тя създава ритъм и динамика на пространството. Living beneath the stars is always a good idea! Breathing is easier there! This modern loft in a new building in Sofia is characterized by its dynamic style, freedom of mind and soul due to the double-height livingroom. With timeless style and comfort due to the natural materials. The apartment takes all of the advantages of the building – double height livingroom and lots of natural light coming through the roof windows from dust till down. Spreading on a total area of 184m2 the loft has a foyer, livingroom with kitchen and diningroom, 3 bedrooms, 2 bathrooms, laundry and terrace on the first floor and mezzanine, party-terrace with its own kitchen and toilet for the guests on the second floor. The main accent is on the wooden wall cladding behind the sofa, which spreads into a railing for the mezzanine. Just like piano keys, it brings rhythm and dynamics into the space.

  • 24.10.2022
  • 529

Fine Architects Ltd.

Архитект
София