Freedom Design & Furniture

Студио за интериорен дизайн
София

Възобновяване

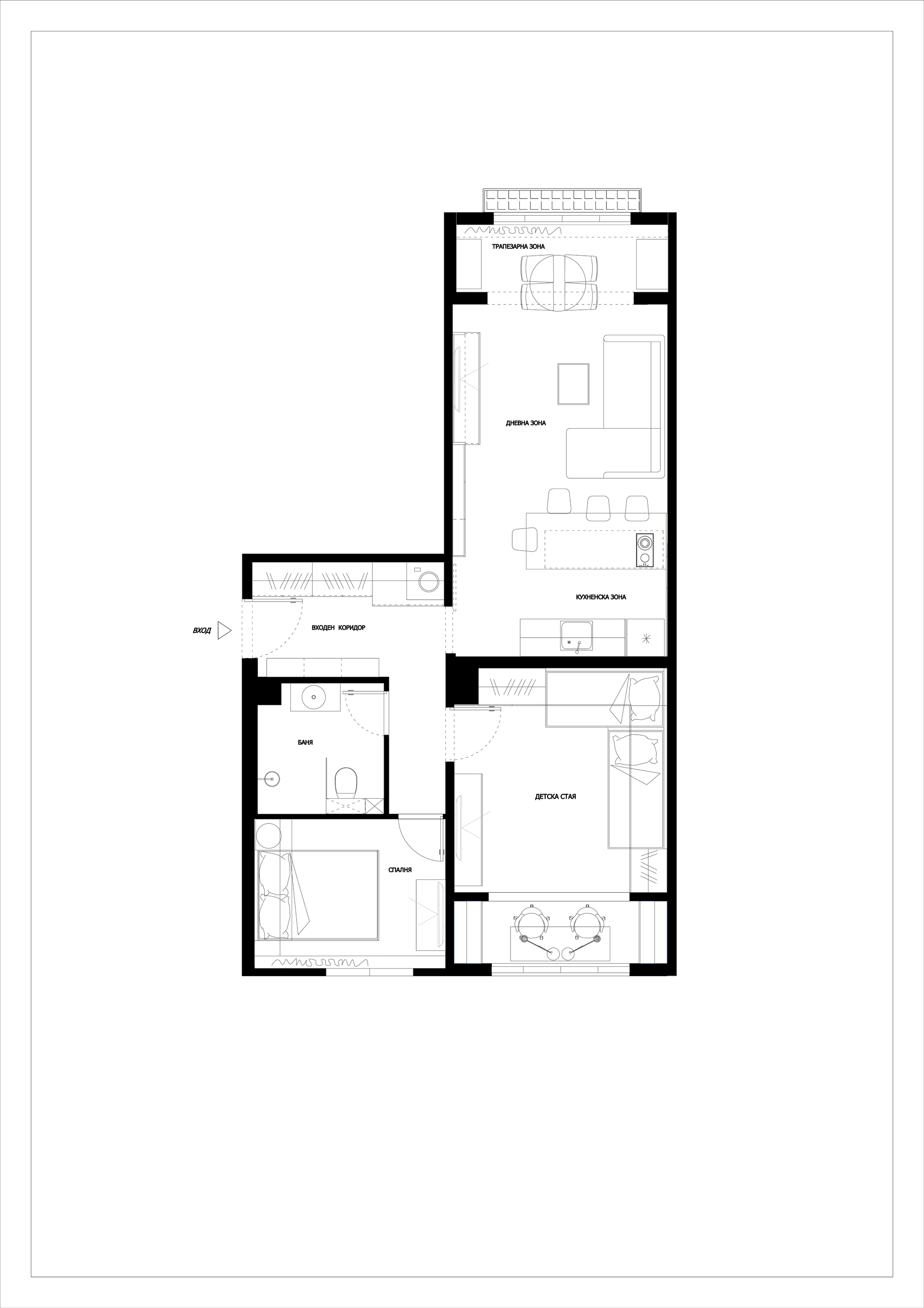
Възобновяване Съвременният дом не е само пространство за обитаване, а отражение на усещането за семеен уют. С този замисъл е създаден проектът, прекроявайки архитектурното разпределение от 59 м2. Стилът е еклектичен, съчетавайки в себе си елементи от различни епохи и стилове, като целта е хармонично и оригинално изглеждащо цяло. Антрето е с голям вграден гардероб с дързък цветен акцент. Преминава се в обединена дневна, кухня и трапезария. Разнообразните текстури, форми и цветовете, създават старинно-модерна визия. Кухнята е с островна част, ламперия с метални свързващи елементи, а лицето завъшват таблени врати, които кореспондират с фрезованата рамката на обединения балкон, която мислено зонира трапезарната част. Осветителните тела следват стила. Централно в дневната е разположен семейния диван, а зад него тухлички, чиято цел е внасянето на уют, в комбинация с врата с ретро механизъм. МДФ принтът носи допълнително индивидуален характер, поради любовта на възложителите към природата и криейки богата библиотека. Жълт е акцентния цвят, присъствайки в основните помещения в комбинация с дървесен декор, а масата в топло жълто, грее осветена от френските прозорци на балкона от ковано желязо. Спалнята е с малка квадратура, но с много обеми за съхранение. Различното тук е изборът на цветове - комбинацията от зелено и пепел от рози изцяло вдъхновен от собственичката, любителка на рози. Детската стая е за две деца без силни цветни акценти, но с цел удобство и възможност за бъдещи промени. Банята също е решена в натурални цветове с фокус дървените гредички на тавана. Водещата сила на проекта е създаването на артистичен и индивидуален стил, в пълна хармония с обитателите му! Renewal The contemporary home is not merely a living space, but a reflection of the feeling of family warmth and comfort. With this concept in mind, the project was created through a complete reconfiguration of the architectural layout. The style is eclectic, combining elements from different eras and design movements, with the aim of achieving a harmonious and distinctive overall composition.The entrance hall features a large built-in wardrobe with a bold color accent, leading into an open-plan living room, kitchen, and dining area. The variety of textures, forms, and colors creates a vintage-modern aesthetic. The kitchen includes an island, wall paneling with metal connecting elements, and cabinetry finished with framed panel doors. These details correspond with the milled frame of the enclosed balcony, which subtly defines the dining zone.The lighting fixtures follow and enhance the chosen style. The family sofa is centrally positioned in the living area, with exposed brickwork behind it, intended to add warmth and coziness, complemented by a door with a retro-style mechanism. The MDF printed panels add further individuality, reflecting the clients’ love for nature while concealing an extensive library.Yellow serves as the accent color throughout the main spaces, combined with natural wood finishes. The dining table, in a warm yellow tone, is bathed in natural light from the French windows opening onto a wrought-iron balcony. The bedroom is compact in size yet offers generous storage volumes. What distinguishes this space is the color palette — a combination of green and dusty rose, fully inspired by the owner, a passionate rose enthusiast.The children’s room is designed for two children, avoiding strong color accents in favor of functionality, comfort, and adaptability for future changes. The bathroom is also finished in natural tones, highlighted by wooden ceiling beams.The guiding principle of the project is the creation of an artistic and individual style in complete harmony with its inhabitants.

  • 15.01.2026
  • 19

Freedom Design & Furniture

Студио за интериорен дизайн
София