SCALE ARCH & DESIGN

Архитект
Сливен

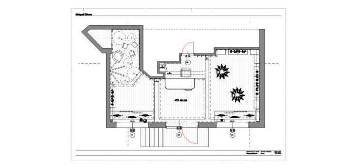
Магазин MAYORAL Сливен

Проектът за Магазин Mayoral в град Сливен е реализиран като съвременен детски търговски интериор, в който функционалността е съчетана с игриво, топло и разпознаваемо излъчване. Пространството е организирано около централна касова зона. Има отворена търговска площ и обособен детски кът. Мебелите са изцяло по индивидуален проект – касов плот с меки, заоблени форми и фино фрезован МДФ фронт, стенни модули и шкафове с матово покритие и вградено осветление, свободностоящи метални закачалки в топъл златист финиш, както и акцентна дървена инсталация тип „дърво“, която изпълнява декоративна функция. Зоната за отдих е допълнена с мека мебел с органична форма и текстилна тапицерия в зелен тон. Материалите и покритията са подбрани с акцент върху естественото усещане и визуалния комфорт – ламиниран паркет тип „рибена кост“ в светъл дървесен нюанс, неутрална бежово-зелена цветова палитра, декоративни кръгли панели на тавана и осветление на няколко нива – релсово, акцентно и декоративно. Арките зад витрината са архитектурен акцент, изпълнен от гипсокартон с прецизно оформени радиуси и матово покритие в топъл неутрален цвят. Те създават дълбочина и сценичност и кореспондират с меките, органични форми в интериора, превръщайки витрината в естествено продължение на цялостната концепция. Крайният резултат е хармонично, модерно и уютно пространство, което създава преживяване, а не просто място за пазаруване. The project for the Mayoral store in the city of Sliven is conceived as a contemporary children’s retail interior, where functionality is combined with a playful, warm, and recognizable atmosphere. The space is organized around a central checkout area, with an open retail floor and a dedicated children’s corner. All furniture is custom-designed – a checkout counter with soft, rounded shapes and finely milled MDF fronts; wall-mounted modules and cabinets with a matte finish and integrated lighting; freestanding metal clothing racks in a warm golden finish; as well as an accent wooden installation in the form of a “tree,” serving a decorative purpose. The relaxation area is complemented by soft seating with an organic shape and green textile upholstery. Materials and finishes are selected with an emphasis on a natural feel and visual comfort – light-toned herringbone laminate flooring, a neutral beige-green color palette, decorative circular ceiling panels, and multi-level lighting including track, accent, and decorative lighting. The arches behind the storefront serve as a key architectural feature, executed in gypsum board with precisely shaped radii and a matte finish in a warm neutral color. They create depth and a sense of theatricality and resonate with the soft, organic forms throughout the interior, transforming the shop window into a natural extension of the overall concept. The final result is a harmonious, modern, and cozy space that creates an experience rather than simply a place to shop.

  • 07.01.2026
  • 10

SCALE ARCH & DESIGN

Архитект
Сливен