Vertikali Architectural Studio

Архитект
Бургас

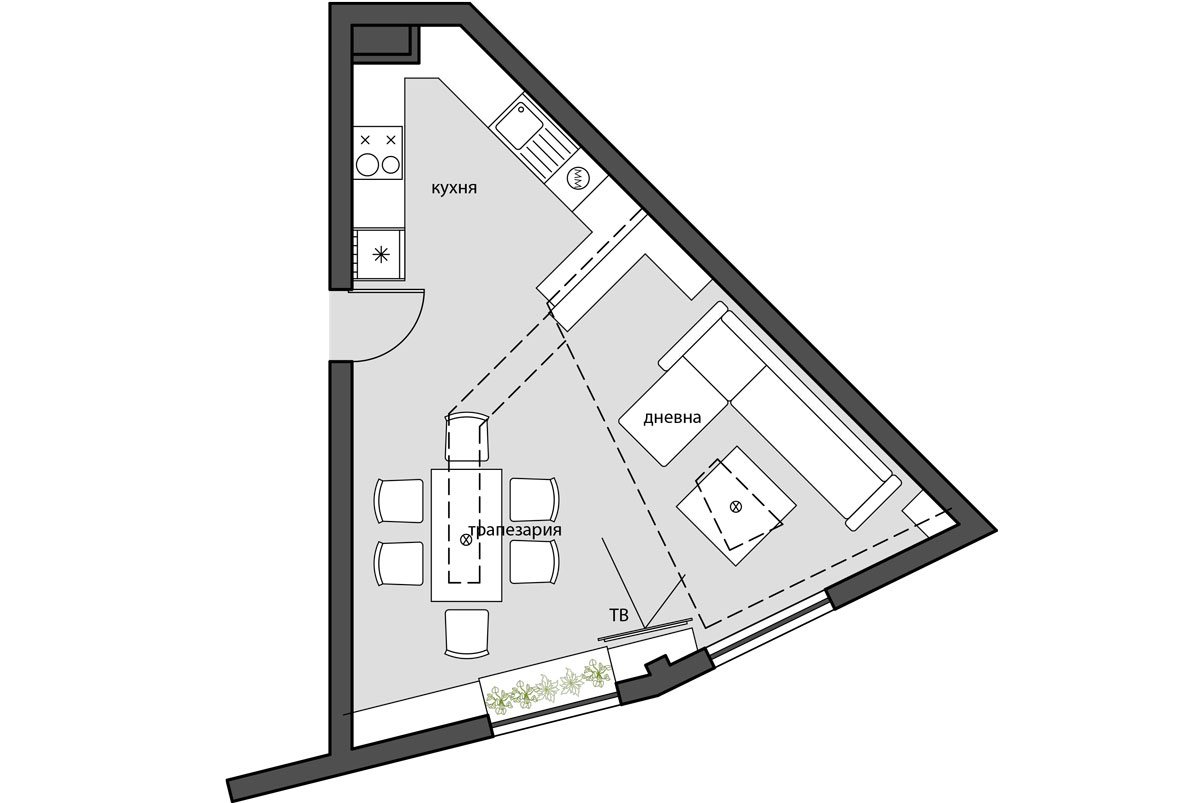
Интериорен проект на кухня, дневна и трапезария в гр. Бургас

Идеен проект за пространство - кухня, дневна и трапезария в град Бургас.

  • 27.04.2016
  • 292

Vertikali Architectural Studio

Архитект
Бургас