LZ architecture

Архитект
София

Интериор HM/ Interior HM

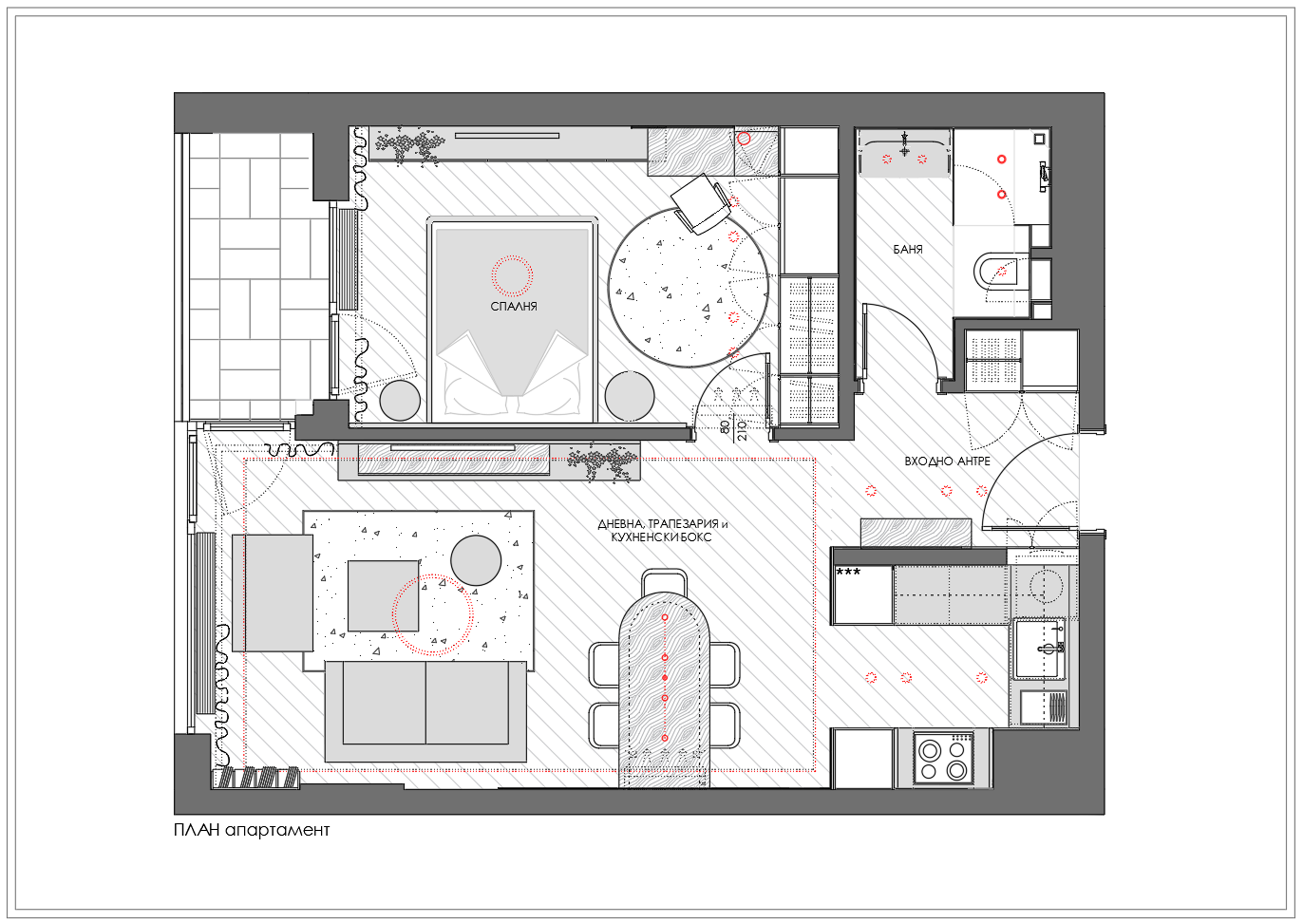
Интериор HM е двустаен апартамент в гр. София с площ 62кв.м. Oригиналното разпределение е преправено с цел обединяване на пространствата и създаване на общ обем на антре, дневна и кухня. С влизането ни посреща корково пано, създадено от над 1000 тапи и комбинирани в един вертикален елемент. В дневната впечатляващ акцент е бетонният таван, който е подчертан от скрито осветление и по време на строителството са оставени изводи в плочата. Комбинацията му с корените стопля атмосферата и придава неповторимо усещане. Трапезарната маса е проектирана с един фин крак, а тежестта на плота се поема от монтаж в стената. Кухнята е отделена от дневната , но и приобщена визуално към общото помещение с мебелни страници в същия тон на тъмносивия латекс при трапезарията. С цел увеличаване визуално на пространството, се залага на голям огледален гръб в кухнята над работния плот. Единната настилка е подредена по диагонал и преминава във всички помещения. Качва се и на една от стените в банята, която е решена минималистично. Заложени са вертикални огледала с цел да създадат още по-интересно и просторно пространство. В спалнята акцент е красивият и нежен зелен тапет с листа, който внася усещането за релакс и почивка , така необходими за отдих след дълъг работен ден. Жилището е на висок етаж, което е предпоставка и за невероятни гледки към София и залезите над нея. Всички мебели са по поръчка, създадени изцяло за това пространство, което е комфортно, подредено и изчистено. И много вдъхновяващо. Interior HM is a one-bedroom apartment located in Sofia, with a total area of 62 sq.m. The original layout was redesigned in order to unify the spaces. The door between the entrance hall and the living room was removed, creating a single open volume that combines the entrance hall, living area, and kitchen. The exposed concrete ceiling serves as a strong visual accent in the living room. During construction, lighting outlets were intentionally left within the concrete slab. Its combination with tree roots decorative elements adds warmth to the atmosphere and creates a distinctive and unique character. The dining table was designed with a single leg, while the weight of the tabletop is supported by wall mounting. The kitchen is visually separated from the living area, yet remains integrated into the open space through MDF side panels finished in the same dark grey tone as the dining area walls. To visually enlarge the space, a large mirrored back was installed above the kitchen worktop. The flooring is wood-effect porcelain tile laid diagonally and extending throughout all rooms. The same material continues onto one of the bathroom walls, which is designed in a minimalist style. In the bedroom, the main accent is a delicate green leaf-patterned wallpaper that creates a calming, relaxing atmosphere-ideal for rest after a long working day. All furniture is designed specifically for this space, resulting in an interior that is comfortable, well-organized, minimal, and highly inspiring.

  • 19.12.2025
  • 100

LZ architecture

Архитект
София