The Fever Lab

Студио за интериорен дизайн
София

A2210

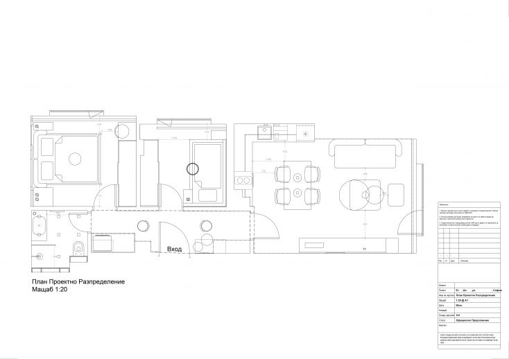
Елегантен и уютен интериор с внимание към детайла. Вдъхновен от меките, неутрални палитри, обогатени с различни текстури. Вградените функционални мебели по поръчка позволяват големи зони за съхранение. Площта е 52 м2. Материалите, които са използвани са естествен трислоен паркет и гранитогрес на пода. Имитацията на естествен камък в спалнята и във всекидневната са акцентни точки в интериора, които се подчертават със скрито осветление. Вградените гардероби в антрето и малката спалня са боядисан МДФ и вложка от естествен фурнир на вратите, която е леко заоблена с цел ергономия. Мебелите в банята отразяват нейния стил в бяло и естествен фурнир. Текстилът е подбран спрямо текстурите и цветовите комбинации. Осветлението е на няколко кръга в различните стаи за контролирано ниво на комфорт. Бюджетът е 200000лв. An elegant and cozy interior with attention to detail. Inspired by soft, neutral palettes, enriched with different textures. The built-in functional custom-made furniture allows for large storage. The area is 52 m2. The materials used are natural three-layer parquet and granite tiles on the floor. The imitation of natural stone in the bedroom and in the living room are accent points in the interior, which are emphasized with hidden lighting. The built-in wardrobes in the hallway and the small bedroom are painted MDF and a natural veneer insert on the doors, which is slightly rounded for ergonomics. The bathroom furniture reflects its style in white and natural veneer. The textiles are selected according to the textures and color combinations. The lighting is in several circuits in the different rooms for controlled level of comfort. The budget is 200000BGN.

  • 09.10.2025
  • 155

The Fever Lab

Студио за интериорен дизайн
София